Sale

Apartment - Paris 7ème

Reference : PRG74
Monument view - Tour Eiffel view - Close to shops - Absolute calmness - Downtown

Exceptional address-family apartment Paris 7

2 500 000 €

Preview

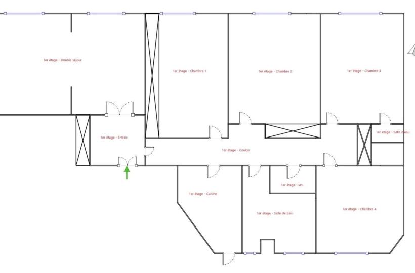
Living area: 124 sqm
Bedrooms: 4
view: City - Small view
DPE

Description

Exclusive six-room family apartment close to the Eiffel Tower.

In the heart of the 7ᵉ arrondissement, at one of the most sought-after addresses on rue du Général Lambert, this luxury apartment is set in an elegant freestone building dating from 1900, with beautiful common areas, elevator and live-in janitor.

Completely renovated to a high standard, this rare property combines old-world charm with contemporary comfort.

The apartment features a living room and dining room, four bedrooms ideal for family living or entertaining, and a contemporary kitchen that's sleek, functional and perfectly integrated.

It also boasts a bathroom with toilet, a shower room and an independent toilet, and benefits from plenty of natural light.

Original parquet floors, fireplaces and generous volumes give the property a warm, refined atmosphere.

A cellar completes the property.

Location

  • Region: Paris
  • Area: Rive Gauche
  • City: Paris 7ème

Terms & Conditions

  • What are the stages in the purchasing process in France?

    Once you have visited a property and made up your mind, you sign a binding offer to purchase, setting out the essential conditions of sale. The file is then entrusted to a notary for signature of a promise to sell (“compromis de vente” or “promesse unilatérale de vente”). The notary then carries out a number of checks to provide the necessary legal security for the transaction, before signing the final deed of sale.

    To find out more about the detailed sales process, click here.

  • How long does the acquisition process take in France?

    Although each case is different, not least because of the notarial considerations involved, it generally takes 3 to 4 months from the signing of the offer to purchase to the handover of the keys.

  • What are the acquisition costs in France?

    Agency fees are included in the sale price.

    Conversely, notary fees are payable by the buyer in addition to the sale price. The calculation of notary fees depends on a number of parameters (geographical location of the property, whether or not the property has furniture already been sold, whether or not the buyer has taken out a bank loan, etc.), but they are generally around 7% of the purchase price. Reduced notary fees may apply to new properties sold by professionals.

  • Do I have to pay a deposit when I sign up?

    A security deposit, usually set at 10% of the sale price, must be paid into the notary's account at the same time as the promesse de vente is signed.

  • What support do you offer?

    Tailor-made support and advice for buyers, from the initial visit to the final sale, are at the heart of our commitment:

    • sales support to answer all your questions
    • legal and tax support to help you structure and carry out your purchase
    • banking support to help you find the right financing if necessary

Organize a visit

You can find out how we process your personal data on our .